The Chalet Verdons provides a rare opportunity to experience the delights of glitzy 1850 without breaking the bank!
These simple and compact apartment-style chalets are ideally located for the slopes, enabling you to ski back to within 100m of the door on the Lozes piste at the end of the day. In the morning, you can ski down the same piste which leads down to the hub of the main lifts of La Croisette, about a 3 minute ski away. The chalets are all in the same building but are individually catered. All three lounges are comfortably furnished and have a balcony with superb views. In the evenings, the full-on après-ski of the centre is reached by around a 10 minute stroll. Altogether these chalets make a popular and convenient choice especially for a small group of friends or families.
Features of Chalet Verdons, Courchevel
• Great location
• WiFi
• Great views
• Ski to & from 100m from the door
• Comfortable Lounge
• Balcony
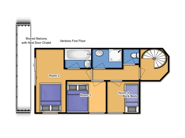
Accommodation in Chalet Verdons, Courchevel
Ground Floor:
• Chalet entrance
Room 1 - Twin
First Floor:
• Shower room with washbasin and separate wc
Room 2 - Double with bath & washbasin
Room 3 - Small double
Room 4 - Bunk beds
Second Floor:
• Living / dining room with balcony & wc
Meals in Chalet Verdons, Courchevel
Food is a highlight of any ski holiday, and our Chalet Hosts will prepare and serve your meals as described here six days per week*. Start the day with a hearty skiers’ breakfast, including a choice of porridge or cereals, tea, coffee, fruit juice, local breads (including croissants and pains au chocolate in France of course!), plus boiled eggs, a choice of preserves, cheese and cold-cut meats, all normally laid out buffet style for you. There will also be a hot ‘dish of the day’ available, such as scrambled eggs or pancakes, freshly cooked to order.
Afternoon tea is the traditional ‘welcome home’ for chalet guests at the end of a day’s skiing, with a slice of freshly baked cake, different each day, to accompany your choice of tea or coffee.
Our 4 course dinner menus start with canapés and an apéritif, followed by a starter, main course and dessert, accompanied by a choice of complimentary wines, with coffee or tea and chocolates to follow.
Vegetarian options are always available, and other special diets are available at a supplement if booked in advance.
*(On your Host’s one day off each week, they will leave a simpler Continental breakfast out for you to help yourselves, there is no afternoon tea that day, and you can dine out locally in the evening. Your resort representative will gladly help out with information and make a reservation for you if you wish.)
Choice of Quality Wines
The wines for our chalets are chosen in conjunction with our good friends and established wine experts, Nicolas and Véronique Perret, who have helped us select two contrasting whites and two choice reds for you to enjoy, unlimited, throughout dinner each evening.